Os transformadores de força são equipamentos utilizados em locais como subestações, consumidores de grande potência instalada e em unidades geradoras de energia. Normalmente são trifásicos, entretanto podem utilizados equipamentos monofásicos para aplicações específicas.
As características dos transfomadores da MCT Transformadores são:
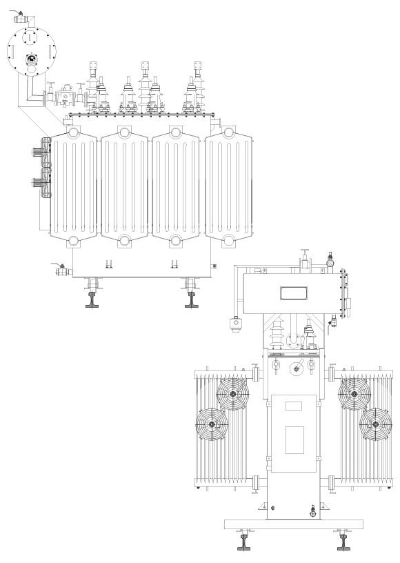
O arranjo componente e dimensional destes equipamentos seguem a padronização conforme a NBR-5356 em sua versão vigente, aliado às especificações / folha de dados dos clientes para as informações que não constam na norma. Na tabela abaixo podem ser obtidas as dimensões externas / arranjo geral e massa para estes tipos de transformadores em configuração trifásica:
| Potência (kVA) ONAN / ONAF | Classe de Tensão (kV) | Tensão Secundária (V) | Dimensional | |||
|---|---|---|---|---|---|---|
| Dimensões em Milímetros | Massa(kg) | |||||
| A | B | C | ||||
| 5000 / 6250 | 15 | 4160 / 2402 | 3000 | 3600 | 3000 | 9000 |
| 36,2 | 13800 / 7967 | 3700 | 3800 | 3600 | 10000 | |
| 7500 / 9375 | 15 | 4160 / 2402 | 3500 | 3600 | 3200 | 15000 |
| 36,2 | 13800 / 7967 | 4000 | 3900 | 3500 | 16200 | |
| 10000 / 12500 | 15 | 4160 / 2402 | 1730 | 1745 | 1165 | 19300 |
| 36,2 | 13800 / 7967 | 4200 | 4400 | 4000 | 21800 | |
| 15000 / 18750 | 15 | 4160 / 2402 | 4250 | 4600 | 4200 | 27500 |
| 36,2 | 13800 / 7967 | 4300 | 4800 | 4400 | 29000 | |
| 20000 / 25000 | 36,2 | 13800 / 7967 | 4500 | 4800 | 4550 | 35000 |
Dimensões para equipamentos diferentes das características acima, solicitar cotação.